安全生产重于泰山|凉山州副州长杨卉带队莅临碧桂园天樾视察指导
扫描到手机,新闻随时看
扫一扫,用手机看文章
更加方便分享给朋友

2019年7月17日,凉山州人民政府副州长杨卉带领西昌市人民政府副市长冉洪全、凉山州住建局局长余明良、西昌市建管局局长唐良金、凉山州住建局总工程师冯庆等一行领导,来到碧桂园天樾项目现场开展建筑工地安全生产检查。

杨副州长一行人深入施工现场,在项目施工负责人的带领下先后参观了施工材料展示区、建筑工程工艺区、实体样板间等地,深入了解了该项目智慧工地管理、安全生产管控以及绿色施工的理念。


在实地走访中,杨副州长认真查看工地安全生产状况,详细了解在建项目的施工进度、质量控制、安全管理等工作开展情况,并叮嘱工地负责人做好工地安全生产工作,提升风险管控能力、及时消除隐患,确保施工安全。

杨副州长强调,安全生产重于泰山,绝不允许有一丝一毫的马虎,要全面落实安全生产主体责任,把安全生产工作摆在更加重要的位置,时刻绷紧安全生产这根弦,决不能忽视任何一点隐患。同时也要注重加强职工安全生产教育,确保生产安全稳定。

经检查,领导肯定了项目安全工作取得的成绩,对碧桂园天樾井然有序的施工现场与放心的品质给予一致肯定。

聚焦安全生产,坚守文明施工。碧桂园天樾始终遵守安全生产红线和三铁六律,以规模完善的管理制度,打造安全有序的建筑标准,为西昌市民打造一个五星级的家。


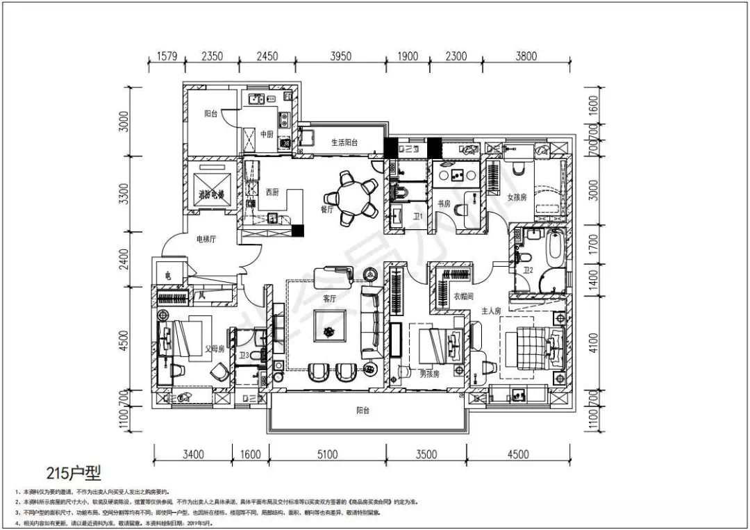
YJ215“传世”
宽景阳光美宅,容纳壮阔人生

五室两厅三卫墅质大平层
仅28套房源
地址:四川省·西昌市西部新城宁远大道旁(三丫口公交站)
声明:本文由入驻焦点开放平台的作者撰写,除焦点官方账号外,观点仅代表作者本人,不代表焦点立场。
